REDUCED - Sweet Beach! 35150+ SF Beachfront Land West Coast with Approved Villa Plans in St. Peter
Where Vision Meets Oceanfront Opportunity
Imagine owning one of the most coveted beachfront plots on the west coast of Barbados — complete with approved architectural plans by the renowned Michael Gomes.
Positioned on over 3,266 sq. m. (35,150+ sq. ft.) of prime beachfront land in tranquil St. Peter, this exceptional opportunity combines rare location, iconic design, and future luxury all in one offering.
⸻
đź’Ľ For Developers: A Turnkey Opportunity to Build the Ultimate Luxury Villa
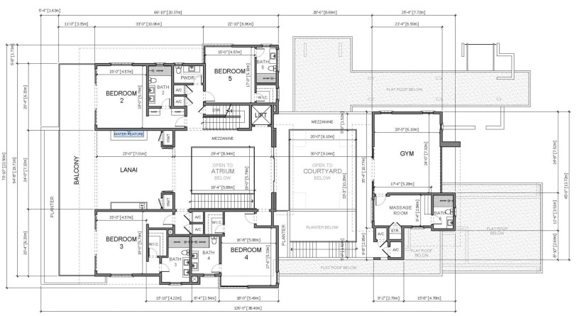
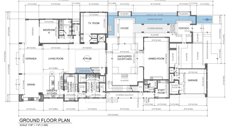
This isn’t just land — it’s a ready-to-go investment with a stunning three-tiered villa concept that capitalizes on panoramic ocean views and a luxurious indoor-outdoor lifestyle. Designed to appeal to ultra-high-net-worth buyers or boutique villa rental clientele, the proposed plan features:
• Over 14,000 sq. ft. of total living space across 3 levels• 7 bedrooms, all en-suite + spa, gym, games room & rooftop pool• Architectural drawings already prepared by Michael Gomes• Interior design recommendations by Monique Archer of Archer’s Hall• Elevator lift to all floors• Elegant open-plan layouts & water features that define island luxury
Whether you’re building to sell or rent, this property offers exceptional resale value and rental income potential in one of the most desirable beachfront corridors of the island.
There is potential for a 7-9 Storey condo development or a hotel. A revised application for planning would be submitted.
Tax Concessions
This lot qualifies for generous tax concessions under Barbados’ Tourism Development Act—ideal for a hotel or luxury villa project. Incentives may include duty-free import of materials, enhanced interest deductions, and tax write-offs for development, marketing, and staff training.
⸻
For Buyers: Build Your Dream Villa in Paradise
Barbados is calling. With year-round sun, crystal-clear waters, and a lifestyle loved by global icons, this is your chance to create a custom masterpiece and legacy home that reflects your taste and stature.• Direct beachfront access in a prestigious, quiet location• Approved plans for a one-of-a-kind luxury villa• Unmatched views from every level of the property• Customise the finishes to your taste with top-tier Caribbean designers
This is not just real estate — it’s your personal sanctuary in one of the most secure, sophisticated destinations in the Caribbean.
⸻
📍 Location: St. Peter, Barbados
Surrounded by upscale resorts, fine dining, and private enclaves, this location offers seclusion with convenience. Just minutes from Speightstown, and a short drive to golf courses, marinas, and private jet access.
⸻
Contact Us:
For complete plans and private consultations.
Own an amazing beachfront lot. Live the dream. Or develop the next great luxury escape.
Secure this rare gem today.




















































